400 6789 808 科好在线客服
  • 首页
  • 实验室
    • 整体方案

      • 一体化方案
      • 装修改造方案
      • 基础教学方案
      • 生物安全方案
      • 仪器分析方案
      • 电器性能方案
      • 恒温恒湿方案
      • 环境可靠性方案
      • 卫生实验室方案
      • EMC实验室方案
    • 系统工程

      • 规划设计
      • 纯水系统
      • 空调及洁净
      • 无菌室工程
      • 通排风工程
      • 智能化控制
      • 给排水系统
      • 气体通道工程
      • 废气处理工程
      • 废水处理工程
    • 认可认证

      • GMP认证
      • 认可准则一
      • 认可准则二
      • 认可准则三
      • 资质认定知识
      • CNAS认证流程
      • CNAS认证材料
      • 认可领域分类
      • 认定评审准则
      • 认可工作流程
    • 实验室设计

      • 设计流程
      • 装修设计
      • 布局设计
      • 仪器摆放
      • 自控设计
      • 排气设计
      • 消防设计
      • 空调设计
      • 排风设计
      • 排水设计
      • 气瓶设计
    • 洁净工程

      • 生物安全柜
      • 洁净工作台
      • 净化空调机
      • 传递窗
      • 风淋室
      • FFU层流罩
    • 通风及设备

      • 排气罩
      • PLC装置
      • 专用风机
      • 电动风阀
      • 通风配件
      • 炭净化箱
      • 喷淋吸附塔
      • 通风变频器
    • 家具设备

      • 配件系列
      • 实验台系列
      • 通风柜系列
      • 功能柜系列
    • 实验室耗材

      • 实验器材
      • 陶瓷制品
      • 棉质制品
      • 塑料制品
      • 专用气体
      • 金属制品
    • 实验室仪器

      • 高温试验箱
      • 高低温试验箱
      • 循环试验箱
      • 盐雾试验箱
      • 冷热试验箱
      • IP防水设备
      • 安规设备
      • 焓差设备
  • 仪器
    • 检重选别

      • 高速检重秤
      • 低速选别秤
      • 多级质量分选设备
      • 其他机型
      • 智能螺旋填充机
      • 汽车衡
    • 安全检测

      • 食用油分析仪
      • 农药残留速测仪
      • 果蔬农药检测仪
      • 茶叶农残速测仪
      • 蛋白质分析仪
      • 便携式水分活度仪
      • 温控型水分活度仪
      • 控温台式水活度测定仪
    • 强力检测

      • 万能实验机
      • 液压拉力实验机
      • 摆锤冲击试验机
      • 双立柱台式电子万能实验机
      • 科好safeline编织带拉力仪
      • 落镖冲击试验仪
      • 悬臂梁冲击试验机
    • 产品检测

      • 安全检测门
      • 金属检测机
      • 检针机
    • 颜色检测

      • 长寿全保护镇流器
      • 色卡|灰卡
      • 染色小样机
      • 涂层测厚仪
      • 五光源对色灯箱
      • 六光源对色灯箱
      • 进口对色灯箱
      • 电脑色差仪
      • 分光测色计
      • 密度仪
      • 色卡/灰卡
      • 染色小样机
      • 刷洗色牢度摩擦仪
    • 环境试验

      • 高低温实验箱
      • 耐黄变实验箱
      • 恒温恒湿试验箱
      • 热老化试验箱
      • 盐雾试验箱
      • 盐雾腐蚀试验箱
    • 化学分析

      • 离子迁移谱仪
      • 有机元素分析仪
      • 动态热机械分析仪
      • 差示扫描量热仪
      • 感官智能分析系统
      • 金属多元素分析仪
    • 温度湿度长度

      • 投影仪
      • 三坐标测量机
      • 激光干涉仪
      • 测距仪
      • CNC影像测量仪
      • YVM影像测量仪
      • TCNC影像量测仪
      • CNC影像测量仪系列
      • LCNC影像测量仪
      • 手动金相显微镜
      • 红外测温仪
    • 精密烘箱

      • 单门精密烘烤箱
      • 多门精密烘烤箱
      • 大型烘烤箱
      • 升降式烘烤箱
      • 洁净无尘烘烤箱
      • 高温烘烤箱
      • 防爆烘烤箱
      • 氮气烘烤箱(防氧化箱)
      • 工业焗炉
      • 石墨舟烘箱
      • 防磁防辐射烘烤箱
      • 实验烘烤箱
  • 设备
    • 安全设备

      • 手持检针机
      • 台式检针机
      • 抗干扰型检针机
      • 电脑彩显检针机
      • 部位显示检针机
      • 双保险检针机
      • X光异物检测机
      • 虫草异物检测机
      • 异物检测机
      • 异物检测机--带打印条码
      • SAFELINE-7安检门
      • Safeline-3安检门
      • Safeline-8安检门
    • 食品机械

      • 榨油机
      • 包子机
      • 全自动饺子机
      • 生态仪
    • 安防设备

      • 监控摄像机
      • 智能(红外)球机
      • 防盗报警设备
      • 监控录像设备
      • 监控显示器
      • 监控周界辅材
    • 电子设备

      • LED产品系列
      • 霓虹灯电源
      • LED电源
      • 霓虹灯铁芯变压器系列
      • 霓虹灯材料系列
      • 电源控制器
    • 自动化设备

      • 自动裁剪机
      • 自动铺布机
      • 真皮裁剪机
      • 定制门店
      • 智能吊挂系统
      • 智能仓储
      • 服装CAD
      • 自动标签机
      • 产品配件
    • 药品设备

      • 脆碎度检查仪
      • 片剂硬度仪
      • 制剂压片机
      • 澄明度检测仪
      • 药物稳定性试验箱
      • 药物研磨机
      • 性状测定仪
      • 热原测温仪
      • 药物包衣仪器
    • 停车设备

      • 升降横移
      • 垂直升降
      • 平面移动
      • 垂直循环
      • 巷道堆垛
      • 多层循环
      • 简易升降
      • 升降机
      • 汽车转盘
      • 塔库
    • 物流设备

      • 专机(含工业机器人)
      • 立体仓库
      • 皮带汇流线
      • 汇流线
      • 转弯线
      • 塑胶件输送线
      • 前装配线
      • 后装配线
      • 总装线
      • 多层老化线
      • 前测线
      • 后测线
      • 多层干燥线
      • 调试线
      • 装配线
      • 自动打包线
  • 人力
    • 个人服务

      • 移动APP
      • 就业指导
      • 兼职实习
      • 科好求职
      • 现场招聘会
      • 人才俱乐部
    • 企业服务

      • 人才顾问
      • 校园招聘
      • 网络招聘
      • 招聘外包
      • 人事代理
      • HR俱乐部
    • 高端猎聘

      • 关于猎头
      • 猎头项目
      • 服务流程
      • 行业规则
      • 猎头顾问
      • 猎头优势
    • 招聘配置

      • 服务目标
      • 招聘原则
      • 招聘概况
      • 风险防范
      • 招聘流程
      • 素质评测
    • 员工关系

      • 沟通管理
      • 纪律管理
      • 关系管理
      • 劳动关系
      • 人际关系
    • 培训开发

      • 制定计划
      • 指导实施
      • 人才培训
      • 质量评估
      • 评价反馈
    • 绩效考核

      • 目的原则
      • 考核依据
      • 制度简介
      • 考核程序
      • 考核体系
      • 成果展示
    • 人力规划

      • 制定原则
      • 考评制度
      • 步骤设定
      • 计划制定
      • 作用详述
      • 发展趋势
    • 薪酬福利

      • 设计目的
      • 基本构架
      • 类型简介
      • 管理制度
      • 影响因素
  • 文化
    • 工业设计

      • 设计研究
      • 设计视角
      • 品牌设计
      • 创新设计
      • 产品设计
      • 工程设计
      • 品牌推广
    • 管理咨询

      • 价值观
      • 咨询原则
      • 咨询方法
      • 咨询服务
      • 管理战略
      • 咨询优势
      • 财税筹划
    • 企业文化

      • 建设方案
      • 实施方案
      • 服务内容
      • 特征简介
      • 管理流程
      • 建设意义
      • 成果展示
    • 书画文化

      • 书法欣赏
      • 书法讲座
      • 书画介绍
      • 书法展览会
      • 书画投资
      • 篆刻综述
      • 玺印文字
    • 影视文化

      • 服务范围
      • 服务特征
      • 微电影制作
      • 微电影综述
      • 专题片拍摄
      • 专题片综述
      • 组织沙龙
    • 网络文化

      • 文化建设
      • 发展条件
      • 人物专访
      • 网上销售
      • 网站建设
      • 网上宣传
      • 发展前景
    • 装饰文化

      • 软装文化
      • 硬装与软装
      • 设计要素
      • 项目服务
      • 文化理念
      • 设计施工
      • 公装工程
      • 业务流程
      • 装饰常识
    • 体育文化

      • 体育内涵
      • 传播服务
      • 体育精神
      • 体育活动
      • 服务客户
      • 价值展现
      • 运动会方案
    • 工艺美术品

      • 工艺简介
      • 关于美术
      • 工美艺苑
      • 产品导航
      • 潜在价值
      • 综合服务
设备
  • 安全设备
    • 手持检针机
    • 台式检针机
    • 抗干扰型检针机
    • 电脑彩显检针机
    • 部位显示检针机
    • 双保险检针机
    • X光异物检测机
    • 虫草异物检测机
    • 异物检测机
    • 异物检测机--带打印条码
    • SAFELINE-7安检门
    • Safeline-3安检门
    • Safeline-8安检门
  • 食品机械
    • 榨油机
    • 包子机
    • 全自动饺子机
    • 生态仪
  • 安防设备
    • 监控摄像机
    • 智能(红外)球机
    • 防盗报警设备
    • 监控录像设备
    • 监控显示器
    • 监控周界辅材
  • 电子设备
    • LED产品系列
    • 霓虹灯电源
    • LED电源
    • 霓虹灯铁芯变压器系列
    • 霓虹灯材料系列
    • 电源控制器
  • 自动化设备
    • 自动裁剪机
    • 自动铺布机
    • 真皮裁剪机
    • 定制门店
    • 智能吊挂系统
    • 智能仓储
    • 服装CAD
    • 自动标签机
    • 产品配件
  • 药品设备
    • 脆碎度检查仪
    • 片剂硬度仪
    • 制剂压片机
    • 澄明度检测仪
    • 药物稳定性试验箱
    • 药物研磨机
    • 性状测定仪
    • 热原测温仪
    • 药物包衣仪器
  • 停车设备
    • 升降横移
    • 垂直升降
    • 平面移动
    • 垂直循环
    • 巷道堆垛
    • 多层循环
    • 简易升降
    • 升降机
    • 汽车转盘
    • 塔库
  • 物流设备
    • 专机(含工业机器人)
    • 立体仓库
    • 皮带汇流线
    • 汇流线
    • 转弯线
    • 塑胶件输送线
    • 前装配线
    • 后装配线
    • 总装线
    • 多层老化线
    • 前测线
    • 后测线
    • 多层干燥线
    • 调试线
    • 装配线
    • 自动打包线
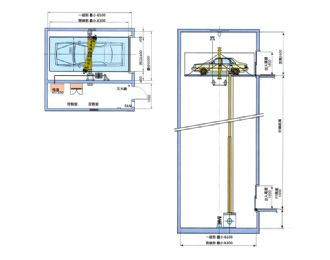
首页 -> 设备 -> 停车设备 -> 升降机

汽车升降机

  •  

               


  •     服务支持

  • . 7x24小时服务
  • . 技术培训
  • . 产品标准下载
  • . 维修资料下载
  •    维修保养

  • .维修保养技术
  • .维修保养合同
  • .维修保养约定
  • .维修保养中心
  •   支付配送

  • .配送选择
  • .配送动态
  • .银行账号
  • .支付选择
  •   投诉建议

  • .投诉建议渠道
  • .建议答谢
  • .投诉答复
  • .投诉建议规则
  •   加入科好

  • .技术人才
  • .管理人才
  • .营销人才
  • .艺术人才
  •   限时优惠

  • .产品优惠
  • .服务优惠
  • .优惠规则
  • .获取优惠

版权所有 科好集团Safeline group All Rights Reserved

  • 关于科好
  • 研究院
  • 企业家俱乐部
  • 科好社工
  • 科好公益慈善
  • 分支机构
  • 网站地图
  • 联系我们